Описание
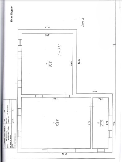
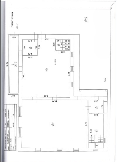
РАБОТАЕМ С АГЕНТАМИ И ПЛАТИМ! РЕНТАВИК— участник ассоциации агентств КОКОН. Здание расположено в селе Усады. Большой автомобильный и пешеходный трафик. Описание помещения: Здание целиком, по факту площадь больше, вместе с цокольным этажом 669 м2.
1 этаж - 232 м2.
2 этаж - 217 м2.
Цоколь - 219 м2.
В здании все коммуникации. Отдельный вход. Этаж: 1. Планировка: смешанная. Требуется косметический ремонт. Тип налогообложения: УСН. Налоговая: 84. Лифты: Нет. Вентиляция: Приточно-вытяжная. Кондиционирование: Сплит-системы. Безопасность: Круглосуточный доступ, Система пожаротушений. Провайдеры: . Парковка: Наземная. Лот 77531-133
1 этаж - 232 м2.
2 этаж - 217 м2.
Цоколь - 219 м2.
В здании все коммуникации. Отдельный вход. Этаж: 1. Планировка: смешанная. Требуется косметический ремонт. Тип налогообложения: УСН. Налоговая: 84. Лифты: Нет. Вентиляция: Приточно-вытяжная. Кондиционирование: Сплит-системы. Безопасность: Круглосуточный доступ, Система пожаротушений. Провайдеры: . Парковка: Наземная. Лот 77531-133
Расположение
Респ Татарстан, Лаишевский р-н, с Усады, ул Дорожная, д 2
Технические характеристики