Купить ПСН 78 м² в ЖК Уникум на Ершова
Описание
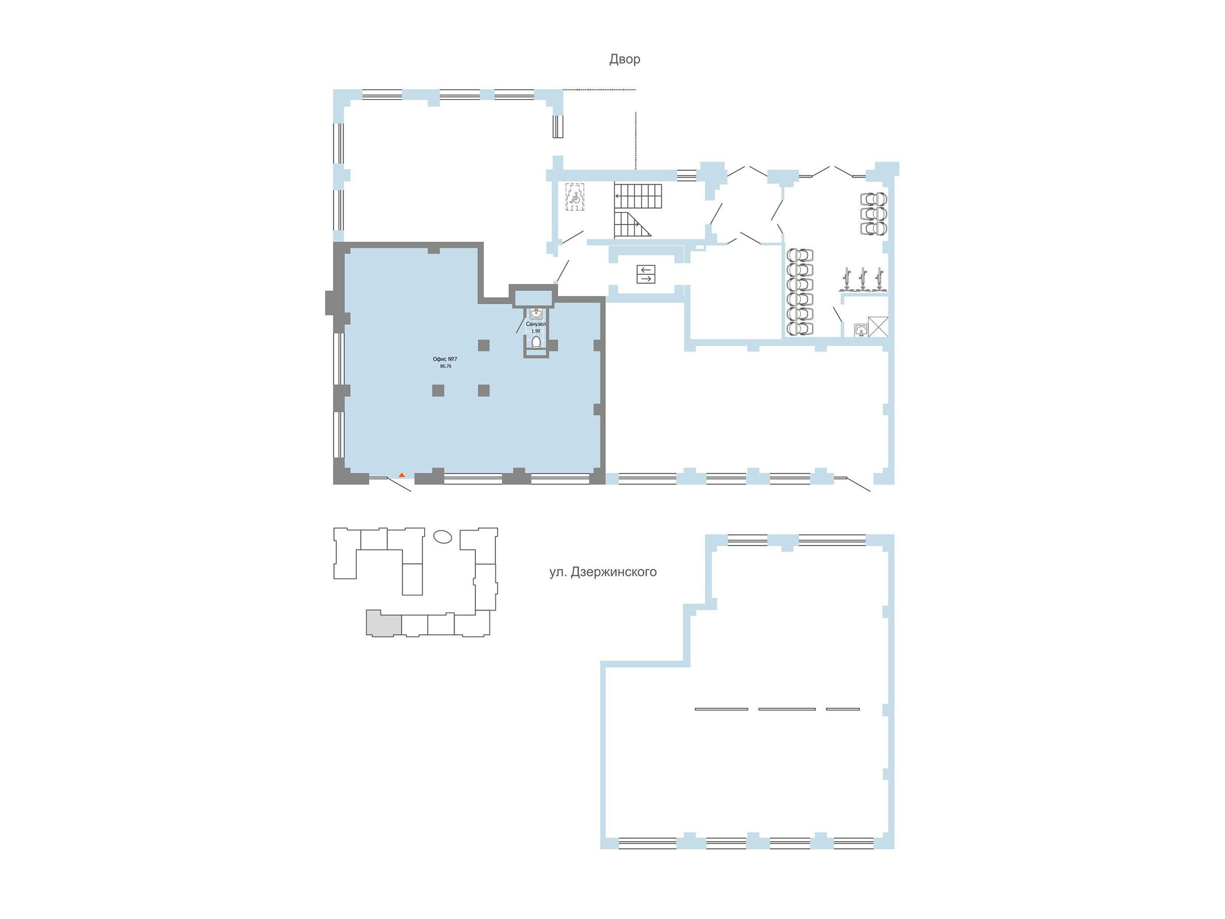
АГЕНТАМ ПЛАТИМ. РЕНТАВИК— участник ассоциации агентств КОКОН. Новый проект компании Унистрой из линейки Уникум расположен в Советском районе на улице Николая Ершова и станет еще одним драйвером развития новой территории на берегу Казанки. Описание помещения: Дом 1, подъезд 2, помещение 1006.
В помещении есть все коммуникации.
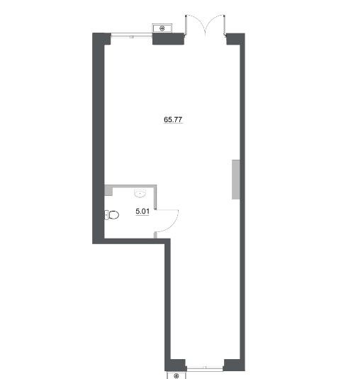
Площадь 78.47м2. Отдельный вход. Этаж: 1. Планировка: смешанная. Под чистовую отделку. Тип налогообложения: УСН. Налоговая: 86. Лифты: Есть. Вентиляция: Естественная. Кондиционирование: Сплит-системы. Безопасность: Круглосуточный доступ, Контроль доступа, Система пожаротушений, Видеонаблюдение. Провайдеры: . Парковка: Наземная. Лот 68914-133
В помещении есть все коммуникации.
Площадь 78.47м2. Отдельный вход. Этаж: 1. Планировка: смешанная. Под чистовую отделку. Тип налогообложения: УСН. Налоговая: 86. Лифты: Есть. Вентиляция: Естественная. Кондиционирование: Сплит-системы. Безопасность: Круглосуточный доступ, Контроль доступа, Система пожаротушений, Видеонаблюдение. Провайдеры: . Парковка: Наземная. Лот 68914-133
Расположение
г Казань, ул Николая Ершова, д 65В
Технические характеристики
Свободные помещения в ЖК Уникум на Ершова
Новость дня
Все новости
Сегодня — 27 апреля, понедельник / Москва
Гастропространство «НеДетский» на 630 посадочных мест открылось в Центральном детском магазине на Лубянке.
Сегодня — 27 апреля, понедельник / Москва
"FORMA завершает продажу всех офисных помещений в бизнес-центре «ЛЕЙКС»"
Сегодня — 27 апреля, понедельник / Москва
"Прогноз: восстановление офисного рынка Москвы ожидается к 2028 году"
Сегодня — 27 апреля, понедельник / Москва
Проект строительства промышленного парка с двумя зданиями на востоке Москвы.
Сегодня — 27 апреля, понедельник / Москва
Бизнес-центр площадью 22,7 тыс. кв. м открылся в Нагатинской пойме.
Сегодня — 27 апреля, понедельник / Самарская
Недостроенный птицеводческий комплекс "Евробиотех" в Самарской области ищет покупателя
Сегодня — 27 апреля, понедельник / Москва
"Планируется строительство восьмиэтажной автостоянки с коммерческими помещениями на 465 машиномест в Новой Москве"
Сегодня — 27 апреля, понедельник / Москва
"«Монарх» приобрел участок площадью 1,36 га на территории бывшего Карачаровского механического завода"
Сегодня — 27 апреля, понедельник / Москва
"Производство растительного молока от Сварщицы Екатерины"
Сегодня — 27 апреля, понедельник / Москва
"Будущее магазинов Gate 31 под угрозой из-за финансовых трудностей"
Сегодня — 27 апреля, понедельник / Воронежская
Название статьи: "Открытие клубов Spirit Fitness площадью не менее 1,6 тыс. кв. м в Воронеже и Липецке"
24 апреля, пятница / Москва
"Продажа бывшего офиса ПСБ на Таганке на аукционе"
24 апреля, пятница / Москва
Компания Level Group планирует создать в юго-восточной части Москвы Многофункциональный комплекс с отелем, термальным центром и спортивными объектами
24 апреля, пятница / Москва
"Более миллиона квадратных метров складских помещений доступны для использования в Московском регионе"
24 апреля, пятница / Санкт-Петербург
Инвестиции в петербургскую недвижимость уменьшились на 9% за первый квартал
24 апреля, пятница / Москва
В Бутырском районе планируют построить бизнес-центр с амфитеатром.
24 апреля, пятница / Москва
"ГК «Калашников» приобрела часть акций десяти швейных фабрик"
24 апреля, пятница / Москва
"«Восток Инвестиции» приобрел долю в 20% компании Tasty Coffee"
24 апреля, пятница / Москва
Магазин «М.Косметик» открыл свой первый филиал в Краснодарском крае, специализирующийся на товарах для дома.
24 апреля, пятница / Москва
В Тверском районе Москвы планируется создание дворцово-садового комплекса с водоемом рядом с жилым домом.